Double flange limited telescopic joint application
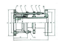
VSSJA-2 dual flange limited telescopic joint for conveying water, fresh water, hot and cold water, drinking water, sewage, crude oil, fuel oil, lubricating oil, oil, air, gas temperature not higher than 250 degrees of steam and particle powder and other media. Double flange limited telescopic joint Features Double flange limited telescopic joint B2F model VSSJA-2 or type pipe flange connection on both sides, can be installed in the piping and valves connected to both the amount of compensation for the pipeline stretching and the maintenance of the valve provides a convenient. VSSJA-2 dual flange limited telescopic joint is a loose set of expansion joints and a short pipe flanges limit combination. Double flange limited telescopic joint to prevent excessive displacement due to lead pipe joints leak and damage compensation, mainly for absorption in the range of permitted axial displacement and axial displacement of the pressure thrust of the pipe loose set of connections. Double flange limited telescopic joint installation instructions VSSJA-2 dual flange limited telescopic joint with flange for both sides are connected at both ends of the adjustment of product installation, flange connection with the length of the diagonal in turn evenly tighten the gland bolt, nut and then adjust the spacing so that we can make within the pipes in the amount of free telescopic retractable, locking telescopic capacity to ensure the safe operation of pipelines.
VSSJA-2 dual flange limited telescopic joint material table
Number
|
Name
|
Quantity
|
Material
|
1
|
Body
|
1
|
QT400-15, Q235A, ZG230-450, 20
|
2
|
Ring
|
1
|
NBR
|
3
|
Gland
|
1
|
QT400-15, Q235A, ZG230-450, 20
|
4
|
Limit the short flange
|
1
|
Q235A, 20,16 Mn
|
5
|
Nut
|
4n
|
Q235A, 20,1 Cr18Ni9Ti
|
6
|
Long stud
|
n
|
Q235A, 35,1 Cr18Ni9Ti
|
7
|
Stud
|
n
|
Q235A, 35,1 Cr18Ni9Ti
|
DN
|
Pipe diameter
|
Dimensions
|
Amount of stretching
|
Flange size
|
||||||
Dw
|
L
|
L1
|
0.6MPa
|
1.0MPa
|
||||||
D
|
D1
|
nd.
|
D
|
D1
|
nd.
|
|||||
65
|
76
|
340
|
105
|
50
|
160
|
130
|
4 - ¢ 14
|
185
|
145
|
4 - ¢ 18
|
80
|
89
|
190
|
150
|
4 - ¢ 18
|
200
|
160
|
8 - ¢ 18
|
|||
100
|
108
|
210
|
170
|
220
|
180
|
|||||
114
|
||||||||||
125
|
133
|
240
|
200
|
8 - ¢ 18
|
250
|
210
|
||||
140
|
||||||||||
150
|
159
|
265
|
225
|
285
|
240
|
8 - ¢ 22
|
||||
168
|
||||||||||
200
|
219
|
320
|
280
|
340
|
295
|
|||||
250
|
273
|
370
|
335
|
12 - ¢ 18
|
395
|
350
|
12 - ¢ 22
|
|||
300
|
325
|
350
|
130
|
65
|
440
|
395
|
12 - ¢ 22
|
445
|
400
|
|
350
|
377
|
490
|
445
|
505
|
460
|
16 - ¢ 22
|
||||
400
|
426
|
540
|
495
|
16 - ¢ 22
|
565
|
515
|
16 - ¢ 26
|
|||
450
|
480
|
595
|
550
|
615
|
565
|
20 - ¢ 26
|
||||
500
|
530
|
645
|
600
|
20 - ¢ 22
|
670
|
620
|
||||
600
|
630
|
755
|
705
|
20 - ¢ 26
|
780
|
725
|
20 - ¢ 30
|
|||
700
|
720
|
860
|
810
|
24 - ¢ 26
|
895
|
840
|
24 - ¢ 30
|
|||
800
|
820
|
590
|
220
|
130
|
975
|
920
|
24 - ¢ 30
|
1015
|
950
|
24 - ¢ 33
|
900
|
920
|
1075
|
1020
|
1115
|
1015
|
28 - ¢ 33
|
||||
1000
|
1020
|
1175
|
1120
|
28 - ¢ 30
|
1230
|
1160
|
28 - ¢ 36
|
|||
1200
|
1220
|
1405
|
1340
|
32 - ¢ 33
|
1455
|
1380
|
32 - ¢ 40
|
|||
1400
|
1420
|
1630
|
1560
|
36 - ¢ 36
|
1675
|
1590
|
36 - ¢ 42
|
|||
1500
|
1520
|
1730
|
1660
|
-
|
-
|
-
|
||||
1600
|
1620
|
1830
|
1760
|
40 - ¢ 36
|
1915
|
1820
|
40 - ¢ 48
|
|||
1800
|
1820
|
2045
|
1970
|
44 - ¢ 40
|
2115
|
2020
|
44 - ¢ 48
|
|||
2000
|
2020
|
2265
|
2180
|
48 - ¢ 42
|
2325
|
2230
|
48 - ¢ 48
|
|||
2200
|
2220
|
2475
|
2390
|
52 - ¢ 42
|
2550
|
2440
|
52 - ¢ 56
|
|||
2400
|
2420
|
2685
|
2600
|
56 - ¢ 42
|
2760
|
2650
|
56 - ¢ 56
|
ÉÏһƪ£º¡¾BF single set of limited telescopic joint Falan Song¡¿
ÏÂһƪ£º¡¾VSSJA-1 single-flange limited telescopic joint¡¿