Name said: CF set single Falan Song Transmission Joint
CF single Falan Song set Transmission Joint Nominal by: DN50-DN3200
CF single Falan Song set Transmission Joint Working pressure :0.6-1 .6 MPA
CF single Falan Song sets Transmission Joint use of media: water, sewage
CF single Falan Song set Transmission Joint sealing material: NBR
CF single Falan Song Transmission Joint set manufacturing standards: GB12465-2007
Features:
Loose Transmission Joint sets in Falan Song additional compensation on the basis of joint control and transmission power of the short flange screws made of sub-types of compensation joints and loose connections and loose sets of sets of compensation limit compensation for different joints the amount of compensation is that it refers to the process of installation and removal of the regulation of the amount, if all of the nut, it is rigid, can pass axis of force to protect valves, pumps and other equipment.
Transmission Joint is a pump, valves and other equipment connected with the pipeline of new products, through all bolts to connect them, making it a whole, and have a certain amount of displacement, so that you can install the maintenance, installation dimensions according to the site adjustments in the work, you can also pass the axial thrust to the entire pipeline. This will not only improve efficiency, and cut on the pumps, valves and other equipment they play a protective role.
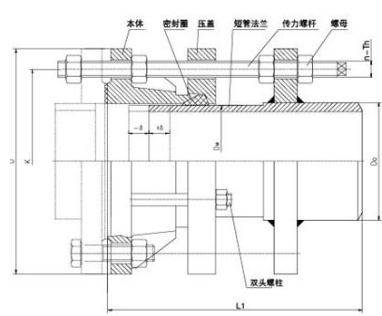
CF single Falan Song Transmission Joint sets are sets of expansion joints and short loose flange, other components of power transmission screw, it can transfer the pressure of being thrust connections (Blind force) and the compensation line error, can not absorb axial displacement. Important for pumps, valves, piping and other accessories Loose connection.
Install a brief description of
CF single Falan Song set for power transmission connectors and flanged side, side and pipe welding. Conditioning products and installation at both ends of the length of pipe or flange installation, installation and after welding, followed by diagonal tighten the gland bolts evenly, making it a whole, and there is a certain amount of displacement, easy installation and maintenance, according to the Field size adjustment. At work, the axial thrust can be delivered to the pipeline.
Transmission Joint classification: single pine sets of power transmission connectors, dual Falan Song sets of power transmission connectors, detachable double Falan Song sets of power transmission connectors.
Transmission Joint Material: mainly Q235 carbon steel, stainless steel, cast steel, ductile iron, etc. Selection of different uses of different materials and models.
CF single Falan Song set Transmission Joint Materials Table
No.
|
Name
|
Quantity
|
Material
|
1
|
Body
|
1
|
QT400-15, Q235A, ZG230-450, 20
|
2
|
Ring
|
1
|
NBR
|
3
|
Gland
|
1
|
QT400-15, Q235A, ZG230-450, 20
|
4
|
Short flange
|
1
|
Q235A, 20,16 Mn
|
5
|
Stud
|
n
|
Q235A, 35,1 Cr18Ni9Ti
|
6
|
Nut
|
5n
|
Q235A, 20,1 Cr18Ni9Ti
|
Nominal diameter DN | Pipe diameter |
Dimensions |
Flange size |
|||||||||
L |
△ L |
0.6MPa |
1.0MPa |
|||||||||
Dw
|
|
D |
D1 |
n-Th |
b |
D |
D1 |
n-Th |
b |
|||
65
|
76 |
76 |
400 | 40 |
160
|
130
|
4-M12
|
16
|
185 | 145 |
4-M16
|
20
|
80
|
89
|
89
|
190
|
150
|
4-M16
|
18
|
200 | 160 |
8-M16
|
22
|
||
100
|
114
|
114
|
210
|
170
|
220 | 180 |
24
|
|||||
125
|
140
|
140
|
240
|
200
|
8-M16
|
20
|
250 | 210 |
26
|
|||
150
|
168
|
168
|
265
|
225
|
285 | 240 |
8-M20
|
|||||
200
|
219
|
219
|
320
|
280
|
22
|
340 | 295 |
28
|
||||
250
|
273
|
273
|
375
|
335
|
12-M16
|
24
|
395 | 350 |
12-M20
|
|||
300
|
325
|
325
|
420 | 50 |
440
|
395
|
12-M20
|
24
|
445 | 400 |
12-M20
|
28
|
350
|
377
|
377
|
490
|
445
|
26
|
505 | 460 |
16-M20
|
30
|
|||
400
|
426
|
426
|
540
|
495
|
16-M20
|
28
|
565 | 515 |
16-M24
|
32
|
||
450
|
480
|
480
|
595
|
550
|
615 | 565 |
20-M24
|
32
|
||||
500
|
530
|
530
|
645
|
600
|
20-M20
|
30
|
670 | 620 |
34
|
|||
600
|
630
|
630
|
440 |
755
|
705
|
20-M24
|
780 | 725 |
20-M27
|
36
|
||
700
|
720
|
720
|
860
|
810
|
24-M24
|
32
|
895 | 840 |
24-M27
|
40
|
||
800
|
820
|
826
|
600 | 60 |
975
|
920
|
24-M27
|
34
|
1015 | 950 |
24-M30
|
44
|
900
|
920
|
926
|
1075
|
1020
|
24-M27
|
36
|
1115 | 1050 |
28-M30
|
46
|
||
1000
|
1020
|
1026
|
1175
|
1120
|
28-M27
|
1230 | 1160 |
28-M33
|
50
|
|||
1200
|
1220
|
1226
|
620 |
1405
|
1340
|
32-M30
|
40
|
1455 | 1380 |
32-M36
|
56
|
|
1400
|
1420
|
1428
|
1630
|
1560
|
36-M33
|
44
|
1675 | 1590 |
36-M39
|
62
|
||
1600
|
1620
|
1628
|
630 |
1830
|
1760
|
40-M33
|
48
|
1915 | 1820 |
40-M4
|
68
|
|
1800
|
1820
|
1828
|
2045
|
1970
|
44-M36
|
50
|
2115 | 2020 |
44-M45
|
70
|
||
2000
|
2020
|
2030
|
650 |
2265
|
2180
|
48-M39
|
54
|
2325 | 2230 |
48-M45
|
74
|
|
2200
|
2220
|
2230
|
2475
|
2390
|
52-M39
|
60
|
2550 | 2440 |
52-M52
|
80
|
||
2400
|
2420
|
2430
|
2685
|
2600
|
56-M39
|
62
|
2760 | 2650 |
56-M52
|
82
|
||
2600
|
2620
|
2630
|
750 | 80 |
2905
|
2810
|
60-M45
|
64
|
2960 | 2850 |
60-M52
|
88
|
2800
|
2820
|
2830
|
3115
|
3020
|
64-M45
|
68
|
3480 | 3070 |
64-M52
|
94
|
||
3000
|
3020
|
3030
|
3315
|
3220
|
68-M45
|
70
|
3405 | 3290 |
68-M56
|
100
|
上一篇:【C2F/VSSJAF double flange Transmission Joint】
下一篇:【C2F double Falan Song sets Transmission Joint】