名稱:BF型單法蘭松套限位伸縮接頭
產品介紹:
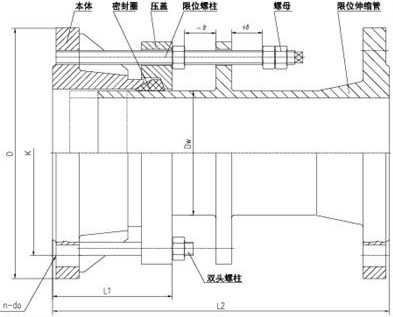
單法蘭松套限位伸縮接頭,型號BF/VSSJA-1或BF型,單法蘭松套限位伸縮接頭是由松套伸縮接頭和一個限位短管組合而成。單法蘭松套限位伸縮接頭能防止管道因超量位移導致補償接頭的泄漏或損壞,主要用于在允許位移范圍內吸收軸向位移和承受軸向壓力推力的管道松套連接。
應用范圍:
BF型單法蘭松套限位伸縮接頭,產品適用于輸送海水、淡水、冷熱水、飲用水、生活污水、原油、燃油、潤滑油、成品油、空氣、煤氣、溫度不高于250度的蒸汽和顆粒粉狀等介質。
單法蘭松套限位伸縮接頭優點:安裝方便快捷、密封可靠、維修方便。
單法蘭松套限位伸縮接頭特點:實現了管道一邊法蘭連接,一邊為焊接的不一致性的方便連接。
VSSJA-1/BF VSSJA-2/B2型法蘭松套限位伸縮接頭基本尺寸(PN0.6 1.0MPa)
稱尺寸 DN |
管子外徑DW | 外形尺寸 | 伸縮量δ | 法蘭連接尺寸 | ||||||||
DW | D0 | L | L2 | L1 | 0.6Mpa | 1.OMpa | ||||||
D | K | n-do | D | K | n-do | |||||||
65 | 76 | 76 | 340 | 340 | 105 | ±25 | 160 | 130 | 4-¢14 | 185 | 145 | 4-¢18 |
80 | 89 | 89 | 190 | 150 | 4-¢18 | 200 | 160 | 8-¢18 | ||||
100 | 108 | 108 | 21O | 170 | 220 | 180 | ||||||
114 | 114 | |||||||||||
125 | 133 | 133 | 240 | 200 | 8-¢18 | 250 | 210 | |||||
140 | 140 | |||||||||||
150 | 159 | 159 | 265 | 255 | 285 | 240 | 8-¢23 | |||||
168 | 168 | |||||||||||
200 | 219 | 219 | 320 | 280 | 340 | 295 | ||||||
250 | 273 | 273 | 375 | 335 | 12-¢18 | 395 | 350 | 12-¢23 | ||||
300 | 325 | 325 | 350 | 370 | 130 | ±32.5 | 440 | 395 | 12-¢23 | 445 | 400 | 16-¢22 |
350 | 377 | 377 | 490 | 445 | 505 | 460 | 16-¢26 | |||||
400 | 426 | 426 | 540 | 495 | 16-¢23 | 565 | 515 | 20-¢26 | ||||
450 | 480 | 480 | 595 | 550 | 615 | 565 | ||||||
500 | 530 | 530 | 645 | 600 | 20-¢23 | 670 | 620 | 20-¢30 | ||||
600 | 630 | 630 | 755 | 705 | 20-¢27 | 780 | 725 | 24-¢30 | ||||
700 | 720 | 720 | 860 | 810 | 24-¢27 | 895 | 840 | 24-¢33 | ||||
800 | 820 | 820 | 590 | 600 | 220 | ±65 | 975 | 920 | 24-¢30 | 1015 | 950 | 28-¢33 |
900 | 920 | 920 | 1075 | 1020 | 1115 | 1015 | 28-¢36 | |||||
1000 | 1020 | 1020 | 1175 | 1120 | 28-¢30 | 1230 | 1160 | 28-¢36 | ||||
1200 | 1220 | 1220 | 1405 | 1340 | 32-¢33 | 1455 | 1380 | 32-¢40 | ||||
1400 | 1420 | 1424 | 640 | 1630 | 1560 | 36-¢36 | 1675 | 1590 | 36-¢42 | |||
1600 | 1620 | 1624 | 1830 | 1760 | 40-¢36 | 1915 | 1820 | 40-¢48 | ||||
1800 | 1820 | 1824 | 2045 | 1970 | 44-¢39 | 2115 | 2020 | 44-¢48 | ||||
2000 | 2020 | 2026 | 2265 | 2180 | 48-¢42 | 2325 | 2230 | 48-¢48 | ||||
2200 | 2220 | 2226 | 2475 | 2390 | 52-¢42 | 2550 | 2440 | 52-¢56 | ||||
2400 | 2420 | 2426 | 2685 | 2600 | 56-¢42 | 2760 | 2650 | 56-¢56 | ||||
2600 | 2620 | 2626 | 600 | 710 | 240 | ±75 | 2905 | 2810 | 60-¢48 | 2960 | 2850 | 60-¢56 |
2800 | 2820 | 2826 | 3115 | 3020 | 64-¢48 | 3180 | 3070 | 64-¢56 | ||||
3000 | 3020 | 3026 | 3315 | 3220 | 68-¢48 | 3405 | 3290 | 68-¢60 | ||||
3200 | 3220 | 3230 | 3525 | 3430 | 72-¢48 | - | - | - | ||||
3400 | 3420 | 3432 | 3735 | 3640 | 76-¢48 | - | - | - | ||||
3600 | 3620 | 3632 | 3970 | 3860 | 80-¢56 | - | - | - |
VSSJA-1/BF VSSJA-2/B2F型法蘭松套限位伸縮接頭基本尺寸(PN1.6 2.5Mpa)
公稱尺寸DN | 管子外徑DW | 外形尺寸 | 伸縮量δ | 法蘭連接尺寸 | ||||||||
Dw | do | L | L2 | L1 | 1.6Mpa | 2.5Mpa | ||||||
D | K | n-do | D | K | n-d0 | |||||||
65 | 76 | 76 | 340 | 340 | 105 | ±25 | 185 | 145 | 4-¢14 | 185 | 145 | 8-¢18 |
80 | 89 | 89 | 200 | 160 | 8-¢18 | 200 | 160 | |||||
100 | 108 | 108 | 220 | 180 | 235 | 190 | 8-¢22 | |||||
114 | 114 | |||||||||||
125 | 133 | 133 | 250 | 210 | 270 | 220 | 8-¢26 | |||||
140 | 140 | |||||||||||
150 | 159 | 159 | 285 | 240 | 8-¢22 | 300 | 250 | |||||
168 | 168 | |||||||||||
200 | 219 | 219 | 340 | 295 | 12-¢22 | 360 | 31O | 12-¢26 | ||||
250 | 273 | 273 | 405 | 355 | 12-¢26 | 425 | 370 | 12-¢30 | ||||
300 | 325 | 325 | 350 | 370 | 130 | ±32.5 | 460 | 410 | 485 | 430 | 16-¢30 | |
350 | 377 | 377 | 520 | 470 | 16-¢26 | 555 | 490 | 16-¢33 | ||||
400 | 426 | 426 | 580 | 525 | 16-¢30 | 620 | 550 | 16-¢36 | ||||
450 | 480 | 480 | 640 | 585 | 20-¢30 | 670 | 600 | 20-¢36 | ||||
500 | 530 | 530 | 715 | 650 | 20-¢33 | 730 | 660 | |||||
600 | 630 | 630 | 840 | 770 | 20-¢36 | 845 | 770 | 20-¢39 | ||||
700 | 720 | 720 | 910 | 840 | 24-¢36 | 960 | 875 | 24-¢42 | ||||
800 | 820 | 820 | 590 | 600 | 220 | ±65 | 1025 | 950 | 24-¢39 | 1085 | 990 | 24-¢48 |
900 | 920 | 920 | 1125 | 1050 | 28-¢39 | 1185 | 1090 | 28-¢48 | ||||
1000 | 1020 | 1020 | 1255 | 1170 | 28-¢42 | 1320 | 121O | 24-¢56 | ||||
1200 | 1220 | 1220 | 1485 | 1390 | 32-¢48 | 1530 | 1420 | 32-¢56 | ||||
1400 | 1420 | 1424 | 640 | 1685 | 1590 | 36-¢48 | 1755 | 1640 | 36-¢62 | |||
1600 | 1620 | 1624 | 1930 | 1820 | 40-¢56 | 1975 | 1860 | 40-¢62 | ||||
1800 | 1820 | 1824 | 2130 | 2020 | 44-¢56 | 2195 | 2070 | 44-¢70 | ||||
2000 | 2020 | 2026 | 2345 | 2230 | 48-¢62 | 2425 | 2300 | 48-¢70 |
上一篇:【B2F型雙法蘭松套限位伸縮接頭】
下一篇:【VSSJA-2型雙法蘭限位伸縮接頭】